[page 4]
PART I: THE SURVEY: ENGLAND AND WALES
9. The survey was carried out in two phases. In the first, a questionnaire was sent to stratified random samples of maintained secondary schools and of special schools for handicapped children in England and Wales. The questionnaire (reproduced in Appendix I) was sent to all types of schools throughout the country in both rural and urban areas. Altogether, 1,175 questionnaires were sent to individual schools after consultation with professional bodies and in co-operation with local education authorities. Table 1 columns i and ii show the total number of schools of various types and the numbers included in the samples. A detailed explanation of the construction of the samples and the estimate made from them is given in Appendix II. Tables two to fourteen are estimates for the whole of maintained secondary schools other than special schools, and the answers derived from samples. The answers from special schools were not treated as part of the sample for general statistical purposes, but were used for the section on special education.
TABLE 1: SCHOOLS INVOLVED IN THE SURVEY
[page 5]
10. The response to the questionnaire, over 94%, made quantitative assessments possible; it was necessary also to attempt some qualitative evaluation. As a second phase of the operation, HM Inspectors visited 106 schools from among the samples, and also ten schools outside them.* To have used the technique of random sampling at this stage would have served no useful purpose. The schools to be visited were chosen with a view to ensuring that every type originally questioned was included. Schools were selected in such a way that HMI could visit in all parts of England and Wales, taking into account both size and type of school as well as environmental circumstances likely to influence the nature of the problems posed by careers education. In addition, it was necessary to include both mixed and single-sex institutions. (Table 1, columns iii and iv refer.)
11. In the pages which follow, an attempt is made to marry the statistical data obtained from answers to the questionnaire with the qualitative assessments made by over 150 members of H M Inspectorate working in small teams. Each team based its investigations on an aide-memoire suggesting the salient features to be investigated and discussed with headmasters and headmistresses, with members of staff, with pupils and, if opportunity offered, with careers officers and CYEE inspectors. In pages 6-36 impressions of visits to 87 maintained schools, other than special schools, are recorded; in pages 37-47 qualitative evaluation is based on visits to 29 special schools.
*One comprehensive school was visited as a pilot exercise, and the other as part of a moderating procedure. One secondary modern school was visited to ensure that the representation of this type was drawn from all areas of the country. In addition, four maintained and three non-maintained special schools in England were included to make the cover more representative.
[page 6]
Policy and practice
12. The curriculum of the secondary school responds inevitably to pressures of various kinds. It must be designed to cater for a wide spectrum of ability, aptitude, temperament and background. It must satisfy the explicit requirements of public examinations and at the same time prepare young people to take their place in adult society as workers and members of their local community. Implicit in the attitude of industry, commerce, the professions and the public at large is the expectation that the school will give every pupil a good general education.
13. In view of the varying needs and aspirations of pupils and of the claims which individual subject disciplines make on both time and resources, the planning of the curriculum is a complex business. Something over 23% of schools claim to have a curriculum committee, and the careers teacher attends as a full member in eight cases out of ten.
14. A school's policy and practice in careers education may be assessed by the extent to which three objectives are attained:
(i) to help boys and girls to achieve an understanding of themselves and to be realistic about their strengths and weaknesses;
(ii) to extend the range of their thinking about opportunities in work and in life generally;
(iii) to prepare them to make considered choices.
Of the 87 schools visited, ten are implementing a policy for careers education in its broadest sense, involving all pupils. There is no evidence of such practice in 47 of the remaining schools.
15. Achieving self-awareness, broadening horizons and preparation for the making of decisions suggest a policy to be implemented in two stages. The first stage is one of exploration - a divergent process. The second entails a convergent process leading to a decision either to continue full-time education in school or elsewhere; or to enter employment.
[page 7]
16. There is more than one way of tackling the process of exploration. One approach is to construct and treat a syllabus, for instance in English, mathematics, home economics or art, so that aspects of the world of work will be illuminated in discussion, reading and writing. Rather more than half of comprehensive schools claim to have adopted it. However, only 20% of selective schools introduce a careers element in this way. The effectiveness of such 'infusion' is found, from HMI visits to depend to a large extent on whether the curriculum is planned by a team; it also depends on the influence exercised by the head of the careers department.
17. An alternative or additional approach is to give careers education time on the timetable. However, in nearly a third of all schools, no periods are devoted specifically to careers education. (See Table 2.) Many schools think that the most urgent need is to meet the requirements of pupils leaving at the statutory age, and the concept of careers education as a continuous process for all from the age of 13 onwards is in no sense realised. Table 2 shows that 33% of schools provide time for leavers' courses only.
TABLE 2: THE PLACE OF CAREERS LESSONS IN THE CURRICULUM
18. Asked in very general terms about the ingredients of the careers programme schools make the following claims:
| % of all schools |
| to study the personal and educational qualifications required for specific occupations: | 83 |
| to study the opportunities available in further education: | 81 |
| to consider general aspects of working life: | 72 |
| to study local industry: | 70 |
| to consider the whole range of occupations open to pupils: | 64 |
| to examine opportunities in industrial training: | 64 |
| to relate courses in schools to occupations: | 58 |
[page 8]
At the exploratory stage it is important for boys and girls to find out about the whole range of occupations open to them, and about the opportunities that are available in further education, as well as considering specific occupations. All young people need to study aspects of working life in general and for some of them opportunities in local industry will have particular relevance.
19. Insight and experience are required to gauge the moment when an individual boy or girl begins to focus attention on one particular 'cluster' of occupations. Those who leave school at 16 must normally reach their decisions in the fifth year. For those who are continuing in full-time education the exploratory stage may last a good deal longer. To meet these varying needs and circumstances about half the non-selective schools provide special careers programmes for pupils of different abilities. In the majority of cases, however, schools (other than special schools) with slow learning or otherwise handicapped pupils do not make special arrangements for their careers education: less than one-third of them choose to do so. Clearly, every attempt must be made to overcome difficulties connected with reading and writing so that the school leaver can compete in the labour market. But it may be psychologically unsound to isolate less well endowed boys and girls from the rest of the school community so that their horizons are, as it were, limited by definition.
20. Table 3 gives a general picture of the place of careers education in the curriculum in the third, fourth and fifth years of the secondary school course. Overall, 25% of schools include it for all or some pupils in the third year, 72% in the fourth year and 48% in the fifth year. The statistical data about the fourth year are illustrated further in pie charts on page ten. In 64% of all schools this is the year in which the choices of subjects, made during the third year (when the pupil is 13+), actually take effect. It is also the year when for the vast majority of pupils the exploratory phase calls for the greatest care. It is clear both from the table and from the pie charts that there is no policy to which all schools conform. Where priority has been accorded to examination targets, to the exclusion of careers education, it does not necessarily imply that no individual guidance is given, but it may mean that the effect of any such guidance is considerably reduced.
[page 9]
TABLE 3: CAREERS EDUCATlON INCLUDED lN THE CURRICULUM
21. The state of affairs recorded will be remedied only when careers education as a continuous process is everywhere acknowledged to be an important element in the curriculum.
22. One of the purposes of HMI's visits during the survey has been to find out to what extent the curriculum, particularly after the age of 13, 'keeps doors open'. There is evidence that schools are adopting a curricular pattern which maintains involvement in language and literature, mathematics and the natural sciences, the social studies and creative, aesthetic and practical experience. Of the 84 schools visited (discounting three with an age range of 11-14), 19 still operate a restrictive pattern of options, but 25
[page 10]
schools involve pupils in all the essential areas of study.* The general impression is that the majority of schools visited are managing to solve the problem of satisfying the pupils' wish to choose while maintaining a coherent curriculum which will allow for later changes of mind.
CAREERS' EDUCATION INCLUDED IN THE FOURTH YEAR CURRICULUM OF SCHOOLS IN ENGLAND AND WALES, BY TYPE
*In the schools visited, the great majority of pupils at the fourth and fifth year stage take a course which consists of a common core and options. The common elements are normally religious education, English language, physical education and mathematics. It is rare for a foreign language or a science to be unavailable to any boy or girl wishing to study both. The areas most likely to suffer are boys' and girls' crafts and the aesthetic subjects; moreover, it is the abler pupils who are, in general, denied adequate access to these areas.
[page 11]
Consultation and communication
23. Whatever a school does to widen horizons, the individual help available to boys and girls through personal discussion is of most immediate significance to them. They may indeed be grateful for opportunities to talk with teachers, with careers officers, with other adults or with groups of their peers; but throughout their school life they need, each of them, a personal point of first reference in times of quandary or difficulty.
24. The point of first reference in the school is usually the tutor or form teacher. When the tutor group is a unit for registration, it often numbers 30 or more, and restricted resources of staff or of space may necessitate such an arrangement. Experience of visiting schools during the course of the survey has led, however, to a conviction that a teacher acting in the role of personal tutor to a group can rarely provide an effective point of first reference for more than about 25 boys or girls.
25. Effective educational and vocational guidance depends in no small measure on consultation between teachers who act as points of first reference to individual pupils and other members of staff who share the responsibility for their work and well-being.
26. Co-ordinated teamwork is especially necessary at two stages in the secondary school course. In the third year, when decisions are reached about courses to be taken in the fourth and fifth years, the majority of schools (82%) declare that career implications of curricular choices are discussed with both pupils and parents. During the fifth year, when pupils must decide whether to enter employment or to continue full-time education in school or elsewhere after the age of 16, 86% of all schools claim to involve both pupils and their parents in discussions about the career implications of courses under consideration. Only a longitudinal study of a group of pupils could attempt to estimate the real value of such discussion.
[page 12]
27. Young people who take academic courses in sixth forms need to consult with the appropriate members of the careers team and with the careers officer, both before choosing the components of the course and during the two-year period of study. Equally, boys and girls unsuited for two or more advanced level subjects, but wishing to stay on at school, with a limited objective, for perhaps not more than a year, need similar help and guidance. Where a school possesses either a director of sixth form studies or someone of equivalent status, there tends to be better co-ordination of effort within the school to provide accurate information and helpful advice.
28. Parents' meetings may be used as a forum for discussing careers education. Table 4 (below) shows that 72% of all schools (80% of comprehensive schools) claim to adopt this practice. Attendance at such meetings varies widely between types of schools and between schools in rural, urban and urban/rural environments. Only 20% of schools claim an attendance of more than three-quarters of the parents; another 39% claim that between a half and three-quarters of parents are present. Selective schools enjoy the closest parental support. Figures show that schools of all types in rural areas of England have smaller attendances than the rest; this may well reflect difficulties of transport.
TABLE 4: CAREERS EDUCATION DISCUSSED AT PARENTS' MEETINGS
29. In a number of schools the greatest possible care is taken to maintain continuous contact with parents, involving them in discussions about programmes of work in school and about implications of choices made by their children.
30. The systematic recording and storage of all relevant information is essential to guidance. The majority of schools (80%) use some type of pupil record form, and 71% a vocational interest
[page 13]
questionnaire. The record form is a necessity; the vocational interest questionnaire a useful tool for those who know how to interpret it.
31. Of 87 schools visited, less than half (40) provide discernible evidence that all the essential information about pupils is systematically collected and stored for use at the proper time. About one school in five of those visited - these include schools of all types - shows an understanding of the problems involved and is tackling them with some success.
32. In some schools, documentation about pupils is impressive in its thoroughness, and reveals a shrewd but sympathetic understanding by members of staff. In such circumstances the effectiveness of the vocational guidance interview is greatly enhanced. Describing an interview in one school, HMI commented that the school had good records reflecting each pupil as a whole person, and that these had been discussed with the relevant teachers beforehand. Thus, the careers officer had as complete a picture of the pupils as the school could provide.
33. Channels of communication between all concerned, including parents, need to be clearly understood, kept open and methodically used. In 48 of the 87 schools visited, lines of communication seem to be insecure. There is evidence of a sound structure in ten schools, but only two of these possess a careers team working closely with all relevant members of staff and with the careers officer. Some schools, where careers education is rightly regarded as a team effort, reveal a lack of systematic consultation between tutors, subject teachers, the year heads and the careers team.
34. However skilfully teachers may be deployed, there is evidence that manpower resources have been over-strained. HM Inspectors have been given numerous opportunities, by courtesy of the schools they have visited, to talk to boys and girls about their programmes of work and about the individual help and advice which they have received. The comment of one girl is typical of a situation all too prevalent: 'The teachers help us as much as they can', she said, 'but the trouble is that there are too many of us and too few of them'.
[page 14]
Staffing and organisation
35. Careers education is one facet of the total process of pastoral care, and it should thus be regarded as an integral part of the arrangements by which schools seek to promote the general well-being of their pupils. The acceptance of their pastoral responsibilities is implicit in the organisation of all schools; nevertheless only a quarter of the schools visited have a system in which all the elements of guidance - personal, educational and vocational - are included.
36. The vast majority of schools in England and Wales (94%) designate at least one member of staff as 'careers teacher'; 46% claim more than one teacher so designated (see Table 5 below). But the role can be variously defined. Some schools include in this category members of staff whose special concern is with personal and social guidance rather than specifically with careers guidance.
37. The careers teacher, though a familiar figure in some staff rooms for more than a quarter of a century, is rarely given the status merited by so important a task. Less than 60% of schools record the payment of any allowance for this work, and only 15% of schools pay an allowance to two or more careers teachers (see Table 6 below). Such an allowance may be paid not exclusively for careers work; in some cases the proportion that arises directly from responsibility in the careers field is small. It is appreciated that schools with less than 500 pupils on roll have less scope for dispensing allowances for separate responsibilities, and include junior high schools (11-14) in which there is less likelihood that a separate allowance will be paid to a careers teacher than in schools catering for the full secondary age range.
[page 15]
TABLE 5: NUMBER OF STAFF DESIGNATED AS CAREERS TEACHERS
TABLE 6: NUMBER OF CAREERS TEACHERS RECElVlNG SPEClAL ALLOWANCES
38. It is rare for a head of a careers department to hold a scale post for responsibilities undertaken exclusively in connection with this work. Of all schools the proportion is 14%; of comprehensive schools it is 23% (see Table 7 below). A scale 4 post or above is offered by less than 8% of all schools in England and Wales solely for careers work. Often this duty is combined with another major responsibility; deputy head, senior master or senior mistress, head of subject department, year tutor or librarian. (Further details can be found in Tables 8 and 9 and in the explanatory notes attached to them.)
TABLE 7: STATUS OF SENIOR CAREERS TEACHERS
[page 16]
TABLE 8: SCHOOLS WHERE THE SENIOR CAREERS TEACHER lS HEAD OF DEPARTMENT SOLELY FOR CAREERS WORK: SCALE FOR SENlOR CAREERS TEACHER
(Scale operative from 1 April 1972)
TABLE 9: SCHOOLS WHERE THE SENIOR TEACHER IS A HEAD OF DEPARTMENT BUT NOT SOLELY FOR CAREERS WORK: SCALE FOR SENIOR CAREERS TEACHER
(Scale operative from 1 April 1972)
Table 8 provides an analysis of the allowances paid in the 14% of all schools shown in the top line of Table 7. Of these 688 schools, 389 offer scale 4 posts or above; this represents less than 8% of all schools in England and Wales.
Table 9 analyses allowances paid in the 51% of all schools shown in the second line of Table 7. From Tables 8 and 9 taken together, it will be seen that in 1,771 schools (36% of all schools) careers education is directed by a senior member of staff with a scale 4 allowance or above; but in only 389 of these is the responsibility solely for careers work.
39. Schools were asked to estimate time given to careers work in the classroom, time spent on other careers work as described in paragraph 40, and the total time allotted to all aspects of this work. As Table 10 records, in nearly half of all schools, the total time allotted to careers education and guidance amounts to no more than the equivalent of one-fifth of the work load of one full-time member of staff. Many schools cannot calculate separately the time spent in careers work other than careers teaching. But only 15% of all schools record that careers teaching occupies as much as one-fifth of the work load of one member of staff.
[page 17]
TABLE 10: TOTAL TIME SPENT ON CAREERS WORK
40. In connection with the survey, a seminar for headmasters and headmistresses was held in January 1972, and members considered the role of the senior careers teacher and the qualities and experience required. Their description recognises that the role is conditioned by the size of the school, by its objectives and by its organisation; that it must allow for individual interpretation according to the personality of the teacher concerned. They list, nevertheless, certain essential responsibilities:
(i) to act as a co-ordinator, linking the curricular and pastoral care aspects of the school;
(ii) be fully involved in curricular development, and fully conversant with details of organisation and of the pattern of the curriculum throughout the school;
(iii) to ensure that certain instrumental functions are performed:
a. liaison with the careers officer;
b. establishment and control of links with higher and further education, with industry, commerce and the professions;
c. the administration of work experience schemes where appropriate;
d. the organisation of the secondment of teachers to industry;
e. supervision of the careers room and of careers literature;
f. planning the use of timetabled time designated for careers work.
They stress that if the work is to be carried out effectively, the careers teacher must be given time from other teaching duties for
[page 18]
planning, and time to take part in the in-service training of colleagues on the staff. Clerical assistance is needed to cope with routine and repetitive tasks.
41. In the opinion of the members of the seminar, a careers teacher:
a. should have had successful teaching experience over a wide range of ability and with several age groups;
b. should have the ability to develop good personal relationships and be a good communicator;
c. should have had specialist training in the field of careers guidance.
42. The survey reveals that in-service training has usually taken the form of short courses lasting from one to five days. It is not possible to state how many teachers in England and Wales have attended such courses, but the following figures show the proportion of schools that record that one or more teachers have attended a brief period of in-service training of this kind:
| % |
| Grammar and technical schools | 81 |
| Comprehensive schools | 73 |
| Secondary modern schools | 66 |
Longer courses are less common: 24% of schools record having at least one teacher who has attended a course of more than a week but less than a term; 11% claim to have at least one teacher who has attended a course of one term or longer.
43. Universities and colleges of education provide one year full-time courses in counselling. Between 1963 and 1972, over 350 men and women qualified through such courses to hold a post designated as 'counsellor'. The counsellor is an experienced teacher who has acquired some professional expertise in helping boys and girls to cope with personal and social problems either at a crisis point or over a continuous period. During the counselling process, personal, educational and vocational issues may all arise. The careers teacher, being primarily concerned with educational and vocational guidance, shares some common ground with the counsellor. There is a growing recognition of a common core in the training of a careers teacher and a counsellor; one college of
[page 19]
education is running a one year full-time course leading to a diploma in counselling and careers work.
44. Awareness of the need for specific training has grown steadily over the past decade. Initiative has been taken by individual local education authorities, and those in one region in the North of England have set up a consortium to plan the training of careers teachers. A team composed of heads, teachers, a CYEE inspector, careers officers, LEA advisers and HMI have already trained some 500 teachers on one-week courses, and some 80 of these teachers have attended a follow-up course. As part of the Department's national short course programme, a series of basic courses was followed by a further series designed to 'train the trainers' which has produced a team of over 100 teachers and careers officers who are now considered suitable to be group leaders on regional and local courses. More recently Area Training Organisations in conjunction with DES have established courses in several parts of the country; these courses, often spread over a period of two terms, are designed to provide a more thorough and systematic introduction to careers work. Other agencies are also active in the training field: the Institute of Careers Officers, the Careers Research and Advisory Centre and the National Association of Careers Teachers. The Central Youth Employment Executive has acted as a useful clearing house for collecting and disseminating information about courses.
[page 20]
Material resources
45. The operation of a realistic and effective programme of careers education in a school depends in some measure on the provision of space specifically allocated for it and on other material facilities.
TABLE 11: ACCOMMODATION
The figures in Table 11 suggest grave inadequacy in basic provision of accommodation. Size of school has obvious relevance but no less than 46% of schools with over 800 pupils state they have no room designated for careers work. A mere 38% of all schools claim one room or more, and of something under 2,000 medium sized schools, only 6% claim two or more spaces for careers work.
46. There is a wide variation in the nature and quality of careers accommodation; it largely depends on the status the school accords to careers education and guidance. Even when this is given high priority rooms have frequently to be shared, to be used as teaching space by other departments or as offices by two or three members of staff. In such circumstances access for pupils for purposes of consultation, reference or browsing through literature is of necessity limited to certain times during the day or week. Schools have been visited where accommodation for careers education is no more than a converted stock room, space at the end of a corridor or an alcove off a passage.
47. Furnishing, equipment and general attractiveness of careers rooms vary widely. Some are spacious and light with comfortable
[page 21]
chairs, attractive displays of material and a welcoming atmosphere; others offer little in the way of encouragement to enter them. One careers room visited was previously a science laboratory and its original fixed science benches are still in position. In another, the furniture consists of a desk, two chairs and a battery of cloakroom lockers which serve as a filing cabinet. In one instance a room is nominally available to members of fifth and sixth forms, but the thick layer of dust which covers everything does not engender much confidence in the regularity or intensity of its use.
48. In contrast, a school opened in extended premises as a re-organised 12-18 comprehensive school in January 1970 includes in its extensions a purpose-built careers suite.* This consists of a well appointed office for the head of careers department, and it has its own telephone extension. A glass partition separates the office from the adjoining careers library-cum-tutorial room where careers literature is displayed on shelves along one side. The room is comfortable and inviting and tutorial groups may meet here during time-tabled careers periods. It is also well used as a reference library during breaks and lunch intervals.
49. When full tribute has been paid to what has often been achieved by ingenuity, perception and hard work on the part of heads and members of staff, the evidence of the survey, putting together quantitative analysis and qualitative judgement, points to grave inadequacy which must be remedied if more than meagre lip service is to be paid to an important element in the programme of secondary schools.
50. The varying amounts which schools spend on materials and visits for careers education are indicated by Table 12. Only 2% of schools spend over £150 per year, and it may seem surprising that only 19% of the larger schools spend more than £75 a year.
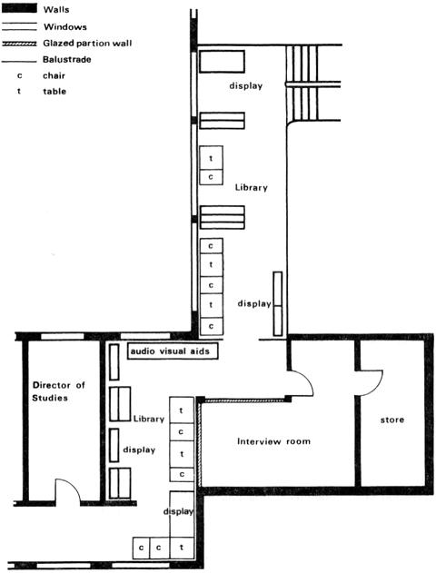
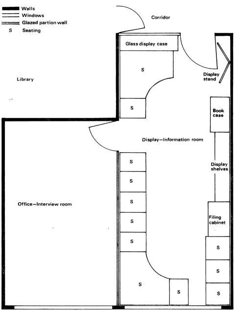
*By permission of two schools (neither of them in the stratified sample) a plan and photographs are reproduced (1) of the purpose-built suite referred to in paragraph 48 and (2) of a careers suite created by a process of adaptation (see centre pages).
[page 22]
TABLE 12: EXPENDITURE ON MATERlALS AND VlSlTS FOR CAREERS EDUCATION
51. Table 13 summarises provision for certain facilities: telephones, storage space and filing equipment. On all these counts, 11% of schools claim to be properly equipped. Here again, the extent of the provision made inevitably bears some relation to the size of the school.
TABLE 13: FAClLITlES FOR CAREERS WORK
52. Direct and immediate communication with the outside world is always important and often essential to the careers teacher. Only just under one-quarter of all secondary schools claim to have an external telephone specifically for the use of the careers staff, and a similar proportion claims an internal telephone. Statistics not shown in Table 13 reveal the percentage of schools of varying types which have this facility:
| External telephone | Internal telephone |
| Grammar and technical | 17% | 13% |
| Modern | 17% | 16% |
| Comprehensive | 37% | 37% |
53. Careers literature is available from many sources, and these include the Central Youth Employment Executive which supplies to schools some approved publications free of charge. A number
[page 23]
of publishers and other agencies produce descriptive and informative material covering virtually the whole range of occupations. By no means all schools calculate per capita expenditure on such literature as a separate item; hence the evidence drawn from answers to the questionnaire can give only a rough indication of present practice. Of all schools 47% state that they spend up to 3p and a further 24% between 3p and 5p per head, while 13%, on their own admission, spend nothing.
54. On the accessibility of careers literature to pupils, evidence is encouraging for, overall, 96% of schools claim that careers publications are accessible and the same proportion state that these are available for borrowing. The fact that there are facilities for open display in only 84% of schools suggests limitation of space and not necessarily lack of initiative.
55. The mass of material available and its variety makes systematic classification essential to an effective information service, but 32% of schools undertake no such cataloguing of their literature. This failure suggests lack of time and of manpower.
56. As the concept of careers education broadens, and outside contacts become more extensive and varied, the allocation of some regular secretarial assistance is essential to the effectiveness of the careers teacher's work. At present about one secondary school in three is able to provide some secretarial help specifically for the careers department. Occasional assistance is made available through the co-operation and forbearance of heads and deputy heads, by the willingness and generosity of many hard-pressed school secretaries and by other members of staff, pupils or parents.
57. Schools were asked about their use of television, radio, films and film strips and slides. It is not surprising that 60% of schools record some use of television as a medium for careers education. By contrast only 6% of all schools use radio programmes. In view of the quality of radio careers programmes, the obvious care with which they are produced and the skill and experience of the contributors, these findings are both surprising and disappointing. Some use of careers films is made in 25% of all schools, but very few schools make use of film strips and
[page 24]
slides. Of one school it is said that such resources are seldom used partly because there are no careers lessons on the timetable to make the showing of films and film strips a practicable proposition; of another that blackout facilities in the classroom are inadequate, and films can be shown only in winter months. Indeed, in making effective use of visual aids, space, facilities, time and manpower are crucial factors.
58. Impressions gained during the visits to 87 schools in England and Wales confirm evidence obtained from answers to the questionnaire. In 51 schools there are inadequate facilities, while of the 15 schools which are better equipped than the others, only 3 impressed H MI as being well provided for in all important respects. This impression is consistent with the results of the statistical analysis which reveals that only 6% of all schools have adequate space, facilities and secretarial help.
[page 25]
The Careers Service
59. In the process of secondary education, careers officers represent, for members of staff and for boys and girls, a link with the highly complex and diversified world of work. Their expertise is threefold. First, they have access to information about possibilities of employment both locally and nationally. Second, they possess knowledge of specific occupations including those for which special qualifications are needed. Third, they develop, with training and experience, the insight, sensitivity and shrewdness needed in vocational guidance interviews.
TABLE 14: NUMBER OF CAREERS OFFICERS VISITS PER YEAR
60. Table 14 illustrates the relationship between the size of school and the number of visits per year paid to them by careers officers. Size alone does not determine the number of visits which are advisable. By the same token, the number of visits indicates nothing about either the length of time spent at the school or the value of the occasion. The careers officer needs to visit the school frequently enough to be familiar with certain key members of staff, with the pattern of organisation and curriculum, and with the special problems which individual boys and girls are liable to face at crucial points in their school lives. It is unlikely that the 63% of small schools receiving 12 or fewer visits a year, the 61% of medium sized schools receiving 18 or fewer, and the 44% of large schools
[page 26]
receiving 24 or fewer, are making full use of the expertise of the careers officer*.
61. Visits to schools have confirmed the impression, gained over the past few years, that there has been a significant strengthening of the partnership between careers officers and many of the schools which they visit. The practice of regular visiting for a full day or for half a day per week is becoming more common. It is in schools which enjoy this regular visiting that fruitful co-operation has been found. Of a 13-18 mixed comprehensive school, HMI records that the careers officer spends two half-days each week in the school taking particular care to choose times which coincide with periods in which members of the careers staff are available to meet her. She also makes special visits to the school if requested to do so. To quote another instance, a boys' secondary modern school is visited at least once a week throughout the year by the careers officer who joins in group discussions and gives individual interviews to which parents are invited. Other examples include a mixed grammar school which is visited for half a day each week, another mixed grammar school which three careers officers each visit for one day a week, and a technical school for boys which is visited between 50 and 60 times per year.
62. A problem facing careers officers is that of matching their visits to the timetabled programmes of the schools. In one area a meeting is held between careers staff from all schools concerned and the careers officer, during the summer term, to arrange the programme for the ensuing year. As a further example, a mixed secondary modern school, which operates a two-week timetable, receives a visit once a fortnight from two careers officers; one of these, in addition, holds a weekly 'surgery' during a lunchbreak when pupils may see him if they so wish. This particular careers officer estimates that his help is sought by an average of six to nine pupils on each occasion.
63. About two schools in every three seek the help of the service in planning the various aspects of the careers programme, and nearly all schools arrange for the careers officer to interview individual pupils and to hold discussions with groups of boys and girls. Planning may involve suggesting speakers, films or activities
*The stratified sample contained 61 schools having over 1,200 pupils. Of these 44 (72%) record 25 or more visits per year.
[page 27]
relevant to the stage of vocational development of various age groups. It may include also advice on work, visits and arrangements for meetings with parents.
64. Consultation between careers officers and heads takes place regularly in 39% of schools and occasionally in nearly all the remainder. Contacts between careers officers and teachers, other than those nominated for careers work, tend to be informal. It is encouraging to find a few cases where the careers officer is invited to take part in staff meetings; equally discouraging to learn of a few schools where this officer has no contact whatsoever with members of staff other than with those specifically designated for careers work.
65. Careers officers meet members of staff, pupils and parents in a number of contexts. Schools report that they receive assistance from careers officers in the following ways:
| % |
| By giving talks and holding discussions with pupils | 97 |
| By giving talks and holding discussions with parents | 64 |
| In planning careers programmes | 63 |
| In planning work visits | 58 |
| In planning talks to parents | 48 |
| In planning work experience | 20 |
66. Instances have been found, however, where schools rely on the help of the careers officer not only for guidance but for all careers education. In a comprehensive school which is visited one day a week, the careers officer is called upon not only to give vocational guidance but to be responsible for all specialised work in careers. It seems hardly necessary to point out that such a practice puts unnecessary strain on careers officers, and that a school is failing in its essential commitment if it regards the relationship with the Careers Service in this light.
67. In a little over half of the schools, boys and girls meet careers officers for the first time during the fourth year (age 14+) ; in 41% of schools the meeting takes place in the third year (age 13+); and in 5% of the schools (mostly selective) in the fifth year (age 15+). There may be advantages for pupils, parents and teachers if the first contact is made during the third year. For pupils, this is normally the year during which choices of curriculum are made,
[page 28]
and it may well be that discussions with the careers officer can help a boy or girl, and maybe the parents as well, to understand more fully the implications of choices made. But there are almost certainly disadvantages in postponing the first contact until the fifth year*. By the time that the pupil meets the careers officer it may be too late to review a decision either to stay on or to leave; equally, by that time the choices made in the third year will fully have taken effect, and the pupil's chances. of reaching a wise decision be thereby reduced.†
68. Careers officers interview leavers at the minimum statutory leaving age more than once in 64% of all schools. They interview more than once pupils, beyond that age who are taking A-level courses in 26% of schools providing such courses.
69. Of 87 secondary schools visited in connection with the survey, 54 provide clear evidence that careers officers and members of staff have established an effective partnership. In 11 of these 54 schools careers officers are fully involved in programmes of careers education and in the process of educational and vocational guidance. In a further 27 schools, evidence is that all concerned are well on the way to fulfilling similar objectives. Apart from 16 schools in which the situation can be described as adequate, there remain 33 schools out of the 87 visited where contacts are tenuous and relationships have as yet to be put on a sound footing.
*References to third, fourth and fifth years respectively assume an age range of 11-18 or 11-16.
†The timing of careers education in relation to curricular choice has been considered more fully in paragraph 15 et seq.
[page 29]
Relations with further and higher education
70. Many careers are open only to those who continue with full-time education after leaving school. The school has therefore a particular role to play in establishing links with institutions of further and higher education. Of all schools, some 70% claim that members of their careers team pay occasional visits to colleges of further education or to institutions of higher education. Only 18% of schools claim to make regular visits.
Further education
71. Organised visits to colleges of further education are seldom regarded as appropriate for all boys and girls: 22% of schools do not appear to arrange any visits. Though some 30% of schools have nominated teachers for liaison with colleges, the picture drawn from a statistical analysis is not reassuring. Moreover, from impressions gained during visits to 84 schools (discounting three schools with an upper age limit of 14), 38 schools show meagre evidence of any fruitful relationships with colleges of further education in their neighbourhoods. There are six schools which take full advantage of the opportunities for co-operation and 19 others which are beginning to do so.
72. Visitors from colleges can often help schools to forge links between these two educational institutions. But nearly 60% of non-selective schools and nearly 70% of selective schools state that no arrangements are made for speakers from colleges to pay annual visits in order to talk to potential students.
73. There are, however, growing points worthy of mention, and they illustrate what can be achieved. One comprehensive school visited enjoys the services of a further education lecturer who acts as schools liaison officer and whose work is likely to help the careers staff to acquire an increasing knowledge of the constantly changing demands of industry and commerce, as well as the standards required of students entering further education at various levels. In
[page 30]
another comprehensive school which has developed excellent working relationships with colleges of further education, pupils in the fourth and fifth years visit colleges as well as places of work, and members of college staffs are among the visiting speakers invited to give talks as part of the careers programme.
74. There is evidence that a school can benefit from the initiative taken by other educational institutions. In one area visited, the principal of the college of further education and the headmaster of the grammar school have together produced a booklet outlining the courses offered by both establishments. They have paid joint visits to all schools concerned in order to talk to the pupils, and they have addressed parents at a number of evening meetings.
75. 'Taster courses' are proving valuable. Such courses are in no sense a form of vocational training; they are part of the exploratory phase during which young people see for themselves the nature of various opportunities open to them. A job sampling scheme has been established in an 11-16 comprehensive school. Candidates for CSE and GCE attend the college of further education for a number of weeks, dividing their time equally between various courses, for instance mechanical engineering, electrical engineering and building trades. A secondary modern school offers taster courses as an option in the fourth year. They are designed to give each pupil some vocational experience in an occupational area chosen from business studies, textiles, artwork and display, building studies and engineering studies. Courses such as these are most effective when they are planned jointly by members of the staff of the school and the college respectively, when the school receives from the college an assessment of each pupil's progress and when the college receives from the school subsequent impressions of the value of the course to the boys and girls engaged in it.
76. The 'linked course', whereby pupils still at school attend a local college of further education part-time, provides a more structured framework within which to plan these co-operative ventures between schools and colleges. Statistics show that some 40% of all schools and about 50% of secondary modern schools claim to make such arrangements. When successful, they can achieve one or both of two objectives: first to broaden educational experience; second, to enable boys and girls to take courses in
[page 31]
some aspects of the social sciences, the natural sciences, technology or business studies, for which resources may not be available in the school, At a girls' 11-18 school, some pupils in the fourth year spend one session a week in a college of further education learning about the work of a hairdresser. The school finds that this experience gives them added pride in deportment and appearance. They benefit also from working in an adult environment. At an 11-18 comprehensive school, a materials technology course combines aspects of art, home economics, design, technical drawing, engineering, physical sciences and biological sciences. Pupils spend one half day at the college of further education and are working for Mode Ill CSE examinations. A girls' 13-18 school arranges for members of the sixth form to study further mathematics at a neighbouring polytechnic, and for other sixth form girls to take courses in computer science, economics, sociology and Spanish at the college of further education.
Higher education
77. A visit to an institution of higher education, or a talk by a visiting speaker may provide the first direct introduction to higher education. Difficulties in the way of regular, organised visits to universities and polytechnics can be understood more readily than can obstacles which are said to prevent schools from arranging for speakers to come and address older pupils. Only 45% of selective schools and 30% of comprehensive schools make such occasions an annual event. Of the 57 schools visited which send pupils directly into higher education, 12 have established strong links and in a further 25 there is evidence of some contact.
78. Relations between schools and colleges of education appear to be tenuous. Only 13% of all schools declare that they invite speakers to talk about courses at these colleges. Many young people enter teaching from universities, and the decision to teach may well be taken at a later stage. Nevertheless, older boys and girls are entitled to know about opportunities in colleges of education.
79. Here and there encouraging signs have emerged. One local education authority holds residential courses lasting from three to four days in July in order to inform pupils in the lower sixth about courses in higher education. An 11-18 comprehensive school
[page 32]
issues to all entrants to the sixth form a bulletin giving guidance on the process of choice and decision in relation to higher education. A 13-18 comprehensive school regularly sends pupils on day visits to universities and to the college of education. Pupils attend residential courses provided by Nottingham University (for potential mathematics and science applicants) and by the Universities of Keele and Manchester for sixth formers interested in English and Arts subjects. These examples show what can be achieved when sixth form careers guidance is well co-ordinated and tackled with initiative.
[page 33]
Relations with industry, commerce and the professions
80. In 19% of secondary schools careers teachers regard the placing of pupils in employment as a major part of their duties; in 57% of schools it is considered to play a minor role and in 19% to form no part of the careers teacher's responsibility. Placement is normally best left to the Careers Service but there are clear advantages both to teachers and pupils in maintaining general and particular links with industry, commerce and the professions.
81. Virtually all schools make some use of visiting speakers. Statistics show that some 41% of schools invite a number of speakers to visit annually in order to talk to pupils. Another 56% issue such invitations on an occasional basis. There is, however, no generally held conviction that a talk by a visiting speaker provides the most effective introduction to a particular profession or sector of employment. One modern school visited, which in the past has invited speakers from industry and old boys and girls of the school to come and talk to pupils, has now discontinued the practice because it has been found that the pupils become bored and derive little benefit from such formal lectures. This school believes, as indeed does a grammar school also visited, that there is greater value in arranging for small groups or for individuals to visit places of employment and to take part in work observation. But not all schools would agree that the value of the visiting speaker should be discounted. One grammar school, for instance, has compiled a register of some 100 parents, in a variety of professions and industries, who have volunteered to come to the school to speak about their own occupations, usually to members of third forms. In some instances, visits to firms by groups of boys and girls result from a talk given by a parent. Talks by representatives of the world of work, who may be parents or former pupils, are sometimes arranged for parents, for instance through a parent-teacher association, with attendance by senior pupils if they so wish. There is general agreement, however, that the use of visiting speakers is most effective when followed up by informal discussions with pupils in small groups and, if practicable, by some form of work observation.
[page 34]
82. The opportunity to go out, to visit firms and see working conditions at first hand often provides a telling and effective experience. On such occasions boys and girls may talk to employees about their work or to training and personnel officers about opportunities which may be available. As it is, 26% of schools arrange for all their pupils to make such visits; 69% make arrangements for some pupils to do so.
83. In an 11-18 school, all groups in the fourth year are timetabled together so that some can attend a talk or film, while others go out on visits in parties of about a dozen. The aim is to promote some general understanding of a factory, office or other workplace, its atmosphere, its purpose and the kind of people who work in it. Members of staff have produced a questionnaire to help boys and girls to ask pertinent questions about rates of pay, length of apprenticeship, holidays, facilities, day release or other matters of direct concern to possible employees. Preparation for and follow up of visits are given great emphasis.
84. There are nearly 1,900 secondary schools in England and Wales (38% of all schools), in which a work experience scheme has been developed for at least some pupils. Some 51% of selective schools in urban/rural districts arrange some such experience. Careers officers assist in organising schemes for some 20% of schools; it follows, therefore, that an almost equal percentage develop their own schemes and work out their own arrangements. The Education (Work Experience) Act, 1973, will enable local education authorities to extend work experience within their discretion.
85. There is no doubt that where a school believes in work experience and finds it possible to arrange, such experience can be a stimulus. Of an 11-16 comprehensive school, HMI remarks that the work experience scheme operates for fifth year pupils each year in June when CSE examinations are out of the way. Pupils spend one week at a firm of their own choice, and a second at another firm of a different type. Thus they are occupied for part of the time in gaining experience of work in which they have declared an interest. One boy who wanted to be an electrician wrote, after a week at an electrical contractors - 'The visit has been of great value to my career and future engagements. I have gained a clear impression of
[page 35]
what is required in the job.' Another boy who hopes to become a police cadet did clerical work in the education officer's office, and he afterwards wrote - 'This job, funnily enough, is not at all what I expected; in fact it never bored me at all. I enjoyed working every minute - a fantastic boost to my working experience.'
86. The co-operation of employees and the care and thought that, in conjunction with careers teachers and careers officers, they have put into the development of work experience, is impressive.
87. If there is value in giving pupils an opportunity to go out of school and see the world of work in progress, it is of equal if not greater importance for members of the careers staff themselves to establish contacts in industry, commerce and the professions. In schools as a whole, 12% record one teacher released for a short period to industry, and a further 6% record two or more teachers so released.* It must be remembered that a number of teachers enter the profession after experience, sometimes considerable, in other occupations. Many schools have yet to realise the potential value of releasing teachers, who have not had such experience, to industry for a short period.
88. Meanwhile, co-operation between schools and industry can be achieved in a number of ways. In one instance, a schools/industry liaison committee has been set up and, as a result of its activities, a day seminar has been held in which groups of managers and, later, groups of supervisory personnel have spent a day observing the life of the school and talking to members of staff and to pupils. At another school, a conference was held in the Autumn of 1972 at which local employers were invited to discuss the implications of the raising of the school leaving age. In a third case, the careers master is planning to spend a fortnight with a local firm as part of a programme designed to foster co-operation between school and industry. A number of schools visited have taken part in the C.B.I. scheme for introducing teachers to industry.
89. Careers conventions have for some years provided a means for informing young people and their parents about a variety of careers and occupations. For both schools and careers officers
*These percentages refer to all teachers and not specifically to careers teachers.
[page 36]
the organisation is a time-consuming business. The value of these occasions depends on the ability of industry, commerce and the professions to explain and illustrate the opportunities they offer. A careers convention appeals to many boys and girls when they are exploring possibilities for the future, but it is no substitute for a continuing process of careers education.
90. The impression made by visits to 84 schools (discounting those with an age range 11-14) is that seven have well established and profitable relationships with industry, commerce and the professions; that 13 recognise the value of such relationships and are attempting to foster them; that 29 maintain a bare adequacy of contact and that in the remainder, the task has yet to be faced. It seems clear that many schools in this country are not effectively in touch with the working world. Those schools which have already created relationships with outside agencies are reaping benefits for both teachers and pupils.
[page 37]
Boys and girls in special schools
91. Careers education is nowhere more important than in the special schools in which local education authorities and other agencies cater for severely handicapped children - the blind and partially sighted, the deaf and partially hearing, the physically handicapped, the delicate, the maladjusted, the educationally subnormal, the epileptic and those having speech defects. In January 1972, 146,390 children, excluding 826 children boarded in homes, were being educated in a special school or class, or they were awaiting admission. There were at this time 1,389 maintained special schools and 112 non-maintained, including 438 schools for mentally handicapped children for whom responsibility was assumed in 1971 as a result of the Education (Handicapped Children) Act, 1970. Approximately two thirds of all special schools contain pupils of secondary school age.*
92. Any description and assessment of careers education in a special school must take into account the special problems which it faces. Some children suffer a handicap which, if they are fortunate, will not deter them from entering employment in sheltered conditions or even in the open market. Some on the other hand may need to be cared for throughout their lives. A few are so afflicted that physical deterioration means that they have only a short time to live. Within any one school - and it may be very small - there are great differences between pupils in their physical condition, intellectual ability, achievement, emotional stability, social competence and family background. Disability may range from mild fits to
*For purposes of the survey, the questionnaire was sent to one special school in three in England, and two out of three in Wales, excluding the schools for which responsibility was assumed in 1971, excluding also schools with no children of secondary school age. Altogether, 281 special schools were sent questionnaires and these included 31 non-maintained schools. 25 schools in England and four in Wales were visited, and the schools chosen represented, as far as possible, each type of special school. Approximately 12% of the schools in the sample were in rural areas: 56% were urban and 31% in an urban/rural setting. Many of these schools are small; over one in four contains less than 50 pupils. This fact, coupled with the number of different types of school to be taken into consideration, made a comparatively large random sample necessary. Even so, the task of evaluation has been difficult, and firm assessments have been made only where evidence has proved convincing.
[page 38]
complete lack of control over both arms and legs. One handicap, moreover, very frequently implies another: a physical disability may be accompanied by severe behaviour problems and by educational backwardness. In addition, a handicap has direct and obvious results in limiting a child's ability to work with others on equal terms; it often has the less obvious but the sometimes more severe effect of determining how the child is treated by others. Many pupils, particularly the educationally sub-normal, come from less privileged homes, and contact both with home and with the Careers Service is made just that much more difficult to children in the schools which are in rural areas. Furthermore, the relatively small size of the school community makes it highly unlikely that a designated careers teacher, trained for the work, will be available. This contingency, coupled with the decrease in the limited range of occupations open to the handicapped, intensifies a problem already acute.
93. In special schools, careers education, viewed as a preparation for adult life, may mean simply teaching the educationally subnormal to read, to do everyday arithmetic and to work with others; and to make the young people realise that these skills and attitudes are essential to success in work or happiness in life. For the physically handicapped, careers education may mean building up self confidence, developing skills and enthusiasms that can make life worth while and employment a possibility.
94. About half of special schools have no designated careers teacher, and only 40% state that the careers teacher has received some form of in-service training in careers education or personal counselling. There is a striking contrast between the concern that many special school teachers show about the job prospects of their pupils and their own lack of training for careers work.
95. Careers education is a task largely shared among all members of staff of special schools. There is ample evidence of the care and devotion shown by heads and teachers; and if patience, sympathy, forbearance, encouragement, and common sense are attributes of careers education, then special schools do not lag behind in this respect. Nevertheless, there is much to be done and much expertise to be acquired.
96. Very few schools (7%) possess a careers room; 74% lack any storage space and 85% any filing equipment for careers education.
[page 39]
To expect space specifically designated for careers work would be unreasonable, but absence of storage space and filing equipment represents a serious deficiency.
97. Publications are usually available. They are openly displayed in about half of the special schools, readily accessible in 71%, available for borrowing in 63% but documented and catalogued only in 15%.
98. One observation is of particular relevance to special schools catering particularly for children who are educationally subnormal, and it has relevance, too, for any school which contains boys and girls with learning problems. Published material about careers is normally written for those who have no difficulties in either reading or comprehension. The deputy head of one special school visited has commented strongly on lack of suitable material for poor readers, and has expressed a wish that some publications may be produced in a simple, pictorial form. Some books which make use of pictures describe occupations which are and will be beyond the reach of young people with acute learning difficulties. Since the autumn of 1970, CYEE has published each year twenty titles in the If I Were series of occupational leaflets. These seem particularly useful since they contain direct, basic information written in simple language. In one local authority, two teachers have developed, over a period of some years, a way of integrating teaching about the world of work with knowledge of the various skills, attitudes and conditions in the area with which they are concerned. This has resulted in a series of booklets on various trades which is now published.
99. It is difficult also to cater effectively for blind and partially sighted children. Some pamphlets, the contents of which do not become too rapidly outdated, have been translated into braille, but these are difficult to produce and they are both expensive and bulky. Some publications have been recorded on tape, and a further development of the production and use of such recorded material is highly desirable; a cassette library would be a valuable asset for blind children. For pupils who are partially sighted, much helpful printed material on careers is available for those who can use either magnifiers, overhead projectors or other similar aids.*
*These matters and the whole problem of careers education for children with visual handicaps are discussed in detail in The Education of the Visually Handicapped - a report of a Committee of Enquiry. HMSO, 1972 (£1.07 by post).
[page 40]
100. For deaf and partially hearing, as for some slow learning children, the usual range of careers literature is often unsuitable because the language in which it is written is too difficult for them. One local education authority, realising the difficulties which some boys and girls find in understanding the language of official literature, has set up a working party to design simpler versions and to consider the production and supply of more suitable material to schools.
101. Television is used by 85% of special schools in connection with careers education; 2% use radio, 4% films and 1% film strips and slides. Some teachers complain that for many handicapped children the pace of some television programmes is too fast and their content too demanding.
102. For the special school contacts with the outside world obviously present severe difficulties. Nevertheless, the link with the careers officer should be strong and the relationship as close and continuing as it is in any other type of school. In 95% of special schools, the careers officer visits at least once a year; 71% are visited six times a year or less, and 7% twenty five times or more. The pattern of visiting varies considerably from school to school and from area to area. Clearly the effectiveness of the careers officer depends on the degree of involvement with members of staff and the pupils, as well as in planning careers programmes and talking to parents. In a third of special schools the careers officer helps to plan the careers programmes; in half of the schools to plan works visits; in 19% to plan work experience and in 26% to plan talks to parents. Contact with the head takes place regularly in 53% of schools and occasionally in 39%. Members of staff are met on an informal basis in 80% of schools, and at staff meetings in 8%. These findings compare unfavourably with those for other types of schools (see paragraph 60 et seq).
103. It is clear from statistical evidence that the careers officer cannot, in many cases, know the children well enough to give them effective help. In 44% of the special schools he or she meets them first when they are in their fifth year; in 43% of cases in the fourth year; in 10% of schools in the third year and in 5% during the second year. Although in two thirds of special schools the careers officer interviews leavers more than once, a closer working partnership
[page 41]
between special schools and the Careers Service seems clearly needed.
104. The evidence of visits to schools suggests, however, that personal relationships between the careers officers and schools are generally good. Several schools pay warm tribute to the careers officers. 'She is the king-pin as far as we are concerned', is the comment of one head. Of another careers officer it is said that 'he is a frequent visitor both for interviews and on such state occasions as "open day". In other words he is a familiar figure to all the older pupils and tries to meet many parents. He is sympathetic and on friendly terms with all the staff.'
105. Some visits suggest, on the other hand, that no sense of forward planning emerges from discussions between the school and the careers officer, and that too little attention is paid to developing an effective service. Difficulties can be caused if there are two separate careers officers attached to one school (for example, a man for the boys and a woman for the girls), or by the distance that specialist officers must cover to see all their schools. Of a boarding school, an HMI comments that since all the boys are resident and come from all parts of the County, many of them will return to their home area when they leave school. The school's careers officer must therefore keep in touch with careers officers in the areas from which the boys come. In another case the careers officer for this school is based miles away. She makes every effort to visit the school regularly and does so three to six times a year, though there are few leavers - only six this year. But because of pressure of work and her wide responsibilities in a county area, she is unable to give the school much help in planning its careers programme. Because of the distance of the school from their homes, parents rarely attend careers interviews. If they wish to do so, they have to bear all the costs of travel themselves.
106. Some development of the service provided appears essential if the pressing needs of handicapped children are to be met effectively. The fundamental principle is continuous guidance. The child changes and so does the situation outside. There must be sustained, systematic review. Too often, the careers officer sees the handicapped child too late and without opportunity for deeper investigation. In the opinion of one careers officer, 'to wait until
[page 42]
the final year often leaves inadequate time for guidance and for application to be made for appropriate training or assessment at a centre, or even for finding a suitable job. It is unfair on disabled youth to let them go out into the world without adequate support, and then wait to see how they cope, assisting them only when they have had a series of failures and setbacks that might have been avoided'.
107. Organised links with higher and further education are difficult to establish. Visits to and from such institutions can rarely be achieved. Some heads of special schools are nevertheless anxious to encourage linked courses specially devised to meet the particular needs of their pupils. In one authority, arrangements have already been made in a college to accept pupils of an ESN school in their last year for part-time training in motor and building trades. Girls have attended short courses in first-aid, physical education, home economics and in woodwork. In another area, there are special arrangements for children with hearing difficulties in a college of further education where a teacher from the school works part-time. The aim of such ventures is not to achieve examination successes, nor is vocational training the objective. The value lies in the ability to bring young people who are deaf into contact with normal students in the college of further education, and in letting them all work together. In individual cases, linked courses with local colleges have led to success in examinations.
108. Contacts with industry, commerce and the professions present similar difficulties. Speakers make annual or occasional visits to 43% of the schools, and visits to firms are made by all pupils in 54% of special schools (by some pupils in a further 36%). Sometimes these visits have little relevance to the future employment since the firms may be many miles from the pupil's home. Yet they may still have great social and educational value. Of a school for epileptic children, an HMI comments - 'To children in residential schools who have spent several years largely confined to a small and isolated community, it is important that they should see and be seen by people in more normal settings and also be stimulated by a change of scene.'
109. Work experience, arranged for all pupils in 8%, and for some pupils in 36% of schools, is designed more to build up their confidence than to involve them in the working world in any real
[page 43]
sense. It is sometimes a matter of boys spending time in the workshop and girls in the home economics room. In some cases buildings can be adapted for animal husbandry or as general workshops. Boys and girls are given jobs to do in a simulated work pattern with extended hours and shorter breaks. They learn to work without supervision. From one special school, boys and girls are employed as assistants for one day a week during their last year in school in the various departments of the local technical college. Each is attached to a particular person for a day: for example, to the boilerman, the caretaker, the groundsman, a kitchen helper or a cleaner. Pupils are expected to find their own way to the college, check in, make their own arrangements for lunch and to work a full day - usually from 8.30 am to 5 pm. An exceptional case is a purpose-built factory unit in a city on the south coast, which since 1967 has given work experience to certain leavers from a secondary ESN school. Pupils attend for 4½ days each week for an average of about 2½ terms, and they undertake a wide range of jobs for local factories. Attempts are made to give them experience in as many aspects of industrial life as possible. The aim is to prepare them for work generally and not for particular employment. By 1970, provisional results indicated that about half of the pupils who had attended were still in their first job after leaving the unit. A somewhat similar but shorter course is run in a Welsh county in an Industrial Rehabilitation Unit.
110. The philosophy of careers education in special schools tends to be based more on a concern with social development and acceptance than with preparation for work. Of one school it is said to be concerned not so much with preparation for a restrictive range of narrowly defined work situations as with producing a stable person, equipped with competence and basic skills and an acquaintance with normal working practice. In a school for maladjusted children, the main element in their education is rehabilitation to enable them to take their place in normal society and deal with the stress and pressures society places upon them. Preparation for life is the keynote. Of one school, HMI declares that all members of staff are involved in this work; indeed their main function is to engender in the children greater responsibility for themselves, greater emotional stability and the ability to live in the world and accept its pressures. Inevitably the range of occupations available is narrow, and part of the education must be preparation of
[text continues after graphics]
Plan A
Adapting space for careers work
Plan A The gallery provides ready access for pupils freely to consult or browse through careers literature.
Plan A A separate office for the head of careers department.
Plan B A careers library-cum-tutorial room is part of a purpose-built careers suite (see overleaf)
Plan B Attractive displays of literature, comfortable chairs and a welcoming atmosphere.
Plan B
A purpose-built careers suite
[page 44]
these pupils for this limitation. This means that careers education is seen as part and parcel of the total educational process which concentrates on social skills, numeracy and literacy with pupils up to the age of 15, followed by a special leavers' course.
111. Careers education is usually therefore a team effort and a matter of infusion rather than of timetabled time. Though about two thirds of schools devote some periods specifically to it, such periods are generally few in number, and in half of these schools they total less than the equivalent of two fifths of one teacher's work load. In many schools, periods devoted specifically to careers work are part of a special leavers' course.
112. For the physically handicapped who may be highly intelligent, preparation for life, apart from coming to terms with and compensating for some grave disability, is a matter of discovering, in individual cases, ways and means of developing talents that can be put to good use in the adult world. For the educationally subnormal it is a matter of concentrating on the development of personality throughout the whole of the secondary course. 'Self assurance, confidence and the ability to mix with other young adults', says one head, 'seem to be the essential qualities ESN leavers should have if they are to make a success of employment. These attributes are not achieved by industrial or vocational training alone though this may help, but rather as a result of all the activities experienced by pupils throughout their school careers ... but it would be quite wrong to imply that no special preparation for leaving school is necessary. Indeed the contrary is so. Especially during the last year of school, slow learners need to be prepared to meet the problems associated with leaving and to stand on their own feet. Form teachers responsible for the senior boys and senior girls will ensure that all relevant ground in the Environmental and Social Studies scheme is covered, in addition to a simple scheme for leavers.'
113. This particular school's leavers' course in Environmental and Social Studies is designed to make every boy and girl familiar with the world around them. It includes:
(i) Going to work - kinds of employment available; Employment Exchanges; forms to fill in; answering questions; interviews.
(ii) Travel - distances from work; fares, bus and rail transport; timetables; maps.
[page 45]
(iii) At work - duties; punctuality and good timekeeping; protection against accidents; conditions of work; trade unions; unemployment and what to do about it.
(iv) Money and work - earnings; piecework; time rate; overtime; bonus; deductions from pay; tax; pensions; National Insurance; private insurance; sickness; benefits; old age; budgeting; saving; hire purchase.
(v) Public life - rights and responsibilities of the citizen; law and order; visit to a magistrate's court; religion, race and colour; a visit to a post office.
(vi) Current affairs.
(vii) The family - responsibility and relationships; hygiene; illnesses; doctors and hospitals; the Citizens Advice Bureau.
114. Such a course as this, familiar in content in many ordinary maintained schools, contains elements which are vital to the establishment of self confidence in those who can learn only very slowly and will have more than ordinary difficulty in finding their feet in the world. To assist such children one local authority in Wales has bought a house for the school, next door to it, where pupils in their leaving year, or those who have left for employment or further education but need continued support for a bridging period, live under the unobtrusive supervision of house parents.
115. Inasmuch as choice of curriculum is possible in a small special school, it is more often than not a matter of devising individual curricular programmes for individual pupils. Hence it is of paramount importance: first, that careful records are kept about each child so that the progress of each individual can be closely observed; second, that the support services of outside agencies are used in all ways that are practicable and appropriate. Indeed, the efficiency of a vocational guidance interview depends, as it does for the normal pupil, on detailed knowledge built up over a continuous period. Although 65% of special schools claim to use a pupil record form when giving careers advice, some believe that such records are unnecessary because every teacher knows every pupil. Such a claim overlooks the fact that members of staff change, that records of attainment and behaviour are useful diagnostically, and that properly devised and completed record forms can help a
[page 46]
teacher to think in an objective manner. For certain types of handicap medical records are essential if wise decisions are to be reached.
116. If the careers officer needs a more detailed assessment than he or she can make, the local child guidance service is sometimes asked to help; a majority of special schools make use of it as well as of the school health service. Some schools have the added help of a full-time or part-time social worker attached to the school by the local social services department. If a period of observation and several interviews are required, these are sometimes available in one of the residential colleges that are maintained by voluntary committees or in industrial rehabilitation units. Some 60% of special schools use these facilities, but the demand for places can seldom if ever be totally satisfied.
117. Much is done in this field for those with physical handicaps. For instance, the resources of the Royal National Institute for the Blind are readily available for careers guidance; it employs seven employment officers, and two of these have responsibilities for professional placement. It is only unfortunate that children with visual difficulties, but not classed as handicapped, are not eligible to receive vocational assessment and training in colleges for the blind or the physically disabled. Close co-operation often exists between schools for children with hearing difficulties and the local welfare officers for the deaf who have statutory duties relating to any deaf person below the age of 16. In one city, the senior officer interprets the role as being one 'within a co-operative effort' that brings together the school, parents, the Careers Service and the welfare officers to attempt to see the deaf pupil in the round. The welfare officer is freely accorded entry to schools and is made welcome by the staff.
118. The actual placement of a severely handicapped person in employment has been assisted to some extent by the Disabled Persons (Employment) Acts of 1944 and 1958. These Acts require any firm employing more than 20 workers to employ a quota of registered disabled persons.
119. The role of the parent in the education of a disabled or otherwise gravely disadvantaged child may be crucial. Hence, the
[page 47]
findings of the survey give some cause for concern. In 72% of special schools, careers are not discussed at meetings for parents. In general, moreover, such meetings are not well supported. In the 28% of special schools where discussions about careers take place, only one school in three reports the attendance of three-quarters or more of the parents concerned. Lack of attendance may be affected by the distance of the school from the home, by a failure to understand printed invitations, by a tendency to put off thinking about a complex problem until forced to do so and by a general feeling of apprehension. Some parents never visit their child even on social occasions. Yet the effective education and guidance of a handicapped boy or girl becomes almost impossible without the co-operation of their parents; their influence cannot be overstated. Their attitude may help to determine for pupils their self-confidence, their adjustment to their handicap and their adjustment to the world at large. Parents who outwardly appear to be rejecting their disadvantaged child - and this may show itself either in gross over-protection or neglect - are sometimes victims of fear or guilt. In such circumstances they need help to come to terms with their attitudes; to recognise their child's assets and limitations and the ways in which they can best help. Formal meetings are often of little use; it is personal discussion that counts.
120. Devoted and expert help is being given to handicapped boys and girls, but in the schools which cater for their varying needs a more informed approach to careers education, and the added professional expertise so necessary in secondary schools as a whole, are no less important.
[page 48]
PART II CAREERS EDUCATION IN WALES
Introduction
121. During the first phase of the survey, conducted in the Spring term of 1972, completed questionnaires were returned by 127 schools in Wales, randomly selected. Of these, 15 secondary schools and four special schools were subsequently visited by HMI in an attempt to make a qualitative assessment of the measure of careers education afforded to the pupils, and of the place given to this aspect of guidance within the curricular and organisational pattern of the schools.
122. The schools included in the survey range from small schools in predominantly rural areas to those in heavily industrialised urban zones, and the work of the schools must be viewed in the context of these differing environments, with their varying degrees of social stability, accessibility of employment opportunities and proximity to centres of further and higher education.
123. It must be emphasised that the percentages quoted for Wales in Part II are not strictly comparable with corresponding figures given earlier for England and Wales as a whole. The statistical analysis for Wales has been modified to take account of the different structure of the Welsh sample. Moreover, during the period of the survey, several of the schools included were undergoing the process of comprehensive reorganisation, or had recently been reorganised, so that the information contained in the 1972 returns may not be a true indication of their ultimate policy and practice in the sphere of careers education.
Staffing and organisation
124. Of the schools included in the survey, only six have no teacher with nominal responsibility for careers work. About 50% of the schools have one such teacher, while staff teams of two or more share the work in the remainder. Several local education authorities have taken advantage of the opportunity of secondary reorganisation to make provision for the appointment of teachers
[page 49]
having special responsibility for careers education within the schools, and at least one authority has made a specific change in its staffing ratio for comprehensive schools for this purpose. In most areas, however, such appointments are at the discretion of the head teacher, whose view of the relative importance of careers education may be reflected in the staffing structure of the school.
125. Some local authorities specify the allowances payable to senior careers teachers, graded according to the size of the school, but 38 of the 181 teachers concerned in the survey, including 23 described as 'Senior Careers Teachers' receive no allowance in recognition of their work. In part, this is accounted for by the fact that in small schools there is little room for flexibility in the distribution of staff allowances, but even in a majority of the larger schools, it is common to find that the organisation of careers work is in the hands of a senior member of staff who already has responsibility for a subject department, and thereby receives a combined allowance. In many such cases, it is difficult, if not impossible, for a head of department with a heavy teaching time-table and often inadequate ancillary help to devote an appropriate amount of time to the surveillance of careers education, even if his role is largely that of the co-ordinator of a staff team.
126. In many schools, the time devoted to careers education is inadequate for anything but the most minimal provision. Careers education is not included in the timetable of about one-third of the schools, while in a few schools, the teachers said to be responsible for careers education are themselves given no time either for specific teaching or related duties. Careers work involves for the teacher a considerable amount of time outside the classroom, and although the majority of the teachers concerned were able to spend up to one-fifth of their time on these administrative duties, this was often insufficient. In the schools visited, it was clear that many careers teachers have to spend a great deal of time during break periods, lunch hours and after school in keeping up with their tasks.
127. Recognition of the need for careers teachers to be given some training in the various aspects of their work has been slow to develop, and the concept of careers guidance as simple information-giving dies hard. Although the extent of provision varies considerably between one authority and another, it is encouraging to find
[page 50]
that teachers are being afforded increasing opportunities to attend training courses organised by DES, CRAC* or the local authorities themselves, so that 62% of the teachers concerned have by now received some form of in-service training in this respect. Relatively few teachers in Wales have been released to industry for a period, but those who have participated in such schemes are often able to draw upon their experience to give more specialised advice to their pupils and to give appropriate assistance to the careers staff.
128. In the schools of Wales, the appointment of school counsellors, either with or without responsibility for careers work, has yet to gain acceptance, and if the schools of Glamorgan, where such appointments are specifically designated as 'Careers Teachers/Counsellors' are omitted from the total of 55 schools employing counsellors the situation revealed is a disappointing one. Although a true picture of the place of the counsellor can only be obtained by viewing his work in the context of the entire pastoral structure of the school, it is significant that in 72% of the schools which have counsellors, no time is allocated to the teachers concerned for personal counselling as distinct from vocational guidance. In only one large boys' comprehensive school does the teacher spend the whole of his time in his dual role of careers teacher/counsellor, and here, according to the headmaster: 'the linkage of the careers guidance and counselling roles is deliberate, since boys reluctant to seek the help of the counsellor may be readier to approach him as careers adviser'.
129. Of the 75 teachers in the schools included in the survey whose duties are concerned with counselling 44% have had no training for this work, while only 16% have had full professional training for a year or more. Nevertheless, it would also seem that several teachers who have attended one-year counselling courses at Swansea or elsewhere, fail to find employment where they can make full use of their acquired expertise in the schools.
Provision within the schools
130. It is difficult to make a precise assessment of the schools' expenditure on careers education, since in many schools, there is no specific annual allocation for careers work. About half the modern
*Careers Research Advisory Centre (Cambridge).
[page 51]
and comprehensive schools and nearly all the grammar schools stated that they spend less than £25 a year on careers education, but this is obviously supplemented in several cases by ad hoc allowances to meet particular needs such as visits to places of employment.
131. In terms of physical accommodation, careers education fares badly. Some schools are situated in old, overcrowded buildings where neither the careers teacher nor the visiting careers officer can find space that is not already pre-empted. Several recently built schools are also lacking in adequate accommodation, either because of pressure of numbers or because the local education authority made no specific provision for careers education in its building plans. All in all, 64% of the schools in the survey lack the basic provision of one room set aside for careers work. It follows that facilities which may be regarded as minimal - external and internal telephones, storage space and filing equipment - are, on the contrary, desirable luxuries as far as many schools are concerned, and only 16 schools out of the whole sample have all these basic essentials. Nevertheless, examples were seen in several schools of effective improvisation and ingenious use of limited space, and in some, the active involvement of pupils was seen in the design and making of display stands or responsibility for the general lay-out of publicity material.
132. It appears that schools rely heavily on the informative literature distributed freely by CYEE, colleges and other institutions, so that 18% of schools of all types allow no further specific per capita expenditure for reference books or other careers publications. The accessibility of this material and its availability to the pupils varies according to the policy of each careers teacher and according to the limitations of the accommodation. Many schools could provide a better information service if more systematic arrangements were made for the cataloguing, documentation and retrieval of this material. Some schools have prepared leaflets or handbooks describing in detail the work of the careers department, while many careers teachers are preparing their own information sheets to supplement the published sources.
133. Most schools are aware of the potentialities of related television programmes as aids to careers education, and imagina-
[page 52]
tive, selective use of these was seen to be made. It was disappointing to find that very few schools followed a radio series such as 'The World of Work', especially as the programmes can be recorded for later use if the actual time of broadcasting does not coincide with that of the lesson. Although only a minority of schools use films, filmstrips or slides, some careers teachers have enterprisingly produced their own collections of illustrative material, more closely related to local conditions and needs than those which are commercially produced.
134. In most schools, the careers teachers are able to avail themselves of the services of the general secretarial staff for help with the clerical work entailed in their duties. In some schools, careers teachers are given valuable assistance by other members of staff and the help of pupils taking secretarial courses is sometimes enlisted for routine filing and typing.
Relations with outside bodies - The Careers Service
135. In most areas in Wales, the Principal Careers Officers have worked out with the schools a programme of visits by careers officers which covers talks and discussions with pupils as well as individual vocational guidance interviews.
136. An example of successful partnership is described by HMI: 'Officers play a full part in the planning and implementation of the programme, and the school speaks highly of the help given. Lists of suitable places for visits and of suitable speakers are provided. Some visits are arranged entirely by the officers and the area officer has played a prominent part from the beginning in the planning of the work experience scheme, and is present at the briefing session and the reporting back session. Interviews by the careers officer are competently carried out, and there is useful pre- and post-interview discussion with the careers teacher and occasionally with the head' (Mixed secondary modern school).
137. It is clear however from replies to the questionnaire that there is no consistent pattern of visits based on either the type or size of school, and while in 44% of schools the careers officer visits 25 or more times during the year, in 18% of schools, from 1-6 visits a year render his potential contribution of minimal value. Travelling difficulties and distances between schools may account for the
[page 53]
infrequency with which some rural schools are visited, but 30% of urban schools also receive only 1-6 visits, a situation which is known to be indicative in some areas of the strained staffing resources of the Careers Advisory Service.
138. In 69% of all the schools concerned, the careers officer meets the pupils for the first time at some stage during the fourth year which indicates that his services are called upon primarily to meet the needs of the statutory age school leaver. This should not imply that, with the raising of the school leaving age, effective contact can be postponed, but rather that there will be a need to make appropriate extensions of the programmes of both the schools and the service.
139. Many schools are not as yet availing themselves of the expertise of the careers officer in advising third year pupils and their parents as to the careers implications of subject choices at this stage. In only 18% of grammar schools and 33% of comprehensive schools is his participation invited in this respect although the pupils of over 70% of these schools have made important choices of subject options, with possible implication for examination courses and ultimately for careers prospects, by the beginning of their fourth year. In general, the needs of the more able pupils are less well served than those of pupils in the lower ability ranges, especially when the area team is too small to include an 'older leavers' specialist' with expert knowledge of opportunities in further and higher education.
140. In most schools, contacts between the careers officer and members of staff, other than careers teachers, are mainly of an informal and fortuitous nature, and the existing partnership could be developed into an even more fruitful collaboration if opportunities for such contacts could be extended. Similarly provision could be made in the careers programme of many schools for more frequent contacts between careers officers and parents.
141. Mention should here be made of the contribution made by local authority further education advisory officers, whose advice supplements that of the careers officer, not only in relation to available grants, but also in providing up-to-date information about college vacancies to pupils whose examination results fail to meet the requirements of the college of their initial choice.
[page 54]
Relations with outside bodies - Further and higher education, industry, commerce and the professions
142. Members of the careers team and some pupils pay occasional visits to establishments of further and higher education in 66% of Welsh schools, while 18% arrange such visits regularly. On the evidence of the schools in the survey, these visits range in frequency and content from attendance at 'open days' to group visits by pupils with an interest in some specific aspect of work. The time and expense often involved for rural schools in arranging these visits inevitably mean a restriction of such activities, and the same considerations tend to limit their participation in linked courses.
143. Such linked courses, in which pupils usually in their last year at school attend further education colleges for weekly sessions, during which they can take advantage of the practical facilities offered by the colleges, have been arranged by several local education authorities. At the time of the survey, 50% modern schools, 15% grammar schools and 20% comprehensive schools were participating in such courses, usually after preliminary consultation between colleges and schools as to the most viable arrangements for both with regard to the timing and content of courses. In a few areas, courses for sixth formers in such subjects as computer studies, thermodynamics and speedwriting have been arranged. It is apparent however, that in several areas, neither schools nor colleges are wholly satisfied with the present arrangements, and that there are areas of disagreement concerning the age/ability range of the pupils involved, and indeed, the whole purpose of the exercise. These courses are still at the experimental stage, and the opportunities they present as a medium of careers education have still to be fully explored.
144. In general, contacts between the schools and institutions of higher education are tenuous. Sound advice, based on personal knowledge or the school's long standing connections with various universities and colleges is given by head teachers, careers teachers and subject staff, but schools often cannot rely on their own internal resources in the task of enabling their pupils to make informed choices and decisions. Thus, some schools have taken the initiative in approaching establishments of higher education to obtain information either through visiting speakers, or by arranging visits by pupils. In view of the increasing complexity of
[page 55]
available courses and the uncertainties of candidates both with regard to the suitability of such courses and the possibilities of subsequent employment, other schools need to create more positive means of guidance for their sixth form pupils.
145. In spite of, or perhaps because of, the traditional links between Welsh secondary schools and the colleges of education, only 15% of the schools invite speakers to talk about teaching as a profession. Here again, it is important that pupils, especially girls, should be afforded the opportunity to consider the pros and cons of teaching, in relation not only to their own personal qualities, but to the possibilities of alternative careers.
146. Thirty-nine per cent of all schools in Wales annually invite speakers representing a range of occupations and professions, and 56% do so occasionally. There is naturally a wide variety of provision in this respect, depending upon such factors as accessibility, the initiative of the careers officer or careers teacher and the range of employment within the vicinity of the school. Some schools invite speakers with the specific purpose of acquainting their pupils with a wider range of careers than is available locally, as a result of which pupils from rural areas take up apprenticeships in the engineering industry, while HM Forces may attract recruits from areas of high unemployment. Schools in the industrial areas have been able to establish contacts with local industrialists' associations, or with a 'school link' scheme operated by firms in the chemical industry. Organisations such as Rotary are very ready to assist the schools with careers advice.
147. Eighty-four per cent of schools arrange for some pupils to make industrial visits, and there was evidence that in most cases, schools prepare their pupils carefully beforehand so as to focus their attention on significant aspects and discuss also their subsequent reactions. Some schools feel that such visits are too transitory and superficial to be of real value, while others believe that they afford an insight into working conditions which could be a useful preliminary to decision making about employment, even if only in a negative sense.
148. Work experience schemes are operating in about 30% of schools, who usually make arrangements with smaller firms or businesses where the employer is personally known to the school
[page 56]
and is sympathetic to the scheme. Although the procedures vary from school to school, meticulous preparation and organisation are prerequisites of success, as shown by HMI comments on the arrangements made by one school - 'A briefing meeting is arranged beforehand, which follows explanation to the parents, whose consent is obtained in writing. During the week both careers teacher and careers officer visit each place where pupils are working. There is then a reporting back session, at which HMI was impressed with the articulate and perceptive response of the pupils. One or two of the employers and sometimes governors of the school are present at this meeting.' Although some schools reported favourably on the value of such schemes, others had encountered difficulties with regard to legal considerations, insurance liability, and, in some areas, resistance by firms faced with simultaneous demands from several schools.
Careers education - Policy and practice
149. 'The Headmaster believes ... that nowadays, more than ever, careers education is a sine qua non of good general education.'
150. 'Careers education at this school is an attachment to rather than an integral part of the school curriculum. This is evidenced by the absence from the time-table of any time for careers guidance. Furthermore, it does not seem to be seen as bearing any close relationship to pastoral care.'
151. These two extracts from HMI comments on mixed comprehensive schools visited during the survey serve to polarise the attitudes towards careers education encountered in the schools. Between the two lies a variety of objectives and approaches, stemming as often from pragmatic considerations as from principles, but by implication, indicating the school's basic concept of its responsibilities in the field of educational guidance.
152. As translated into actual practice within the schools, the situation in Wales does not differ significantly from that portrayed in England. In general, there is an increased awareness of the implications of sound careers guidance, and at the time of the survey, several schools were already in process of adapting their curriculum and organisation accordingly. There is still much to be done, however, before the situation can be deemed satisfactory.
[page 57]
153. The most effective expression of the school's philosophy of education is its curriculum. Its content is indicative of the relative importance attached to its diverse component subjects, while the presence of a curriculum committee concerned with its planning helps to ensure that these add up to a balanced and relevant whole. Of all the schools included in the survey, 26% claim to have a committee or academic board charged with the task of formulating a curriculum for the school, and the careers teacher is a member of this committee in 84% of these schools. It is fair to say that in many schools which lack a formal committee curriculum discussions in which staff are involved, are a common feature, and factors such as the careers implications of subject options are borne in mind. Within the subject areas, 39% of all schools claimed that topics related to preparation for work were incorporated in the teaching of specific subjects. In practice, however, there was found to be a considerable variation between schools where this claim was based on a declared policy, and those where it depended on the attitude of individual teachers. On the whole, if preparation for work as an integral part of subject syllabuses is taken as the criterion, this was found to be the case in very few schools.
154. Over 70% of schools stated that they had periods specifically devoted to careers education and in the majority of modern and comprehensive schools these were seen to be part of a 'special leavers' course'. 10% of comprehensive schools include these in a 'social studies course', while 72% of grammar schools and 20% of comprehensive schools include them in 'other courses'. Among such courses seen were tutorial periods for fourth year examination forms, sixth form general studies courses, community service projects where vocational bents could be exercised, and themes relating to Schools Council Projects. Sometimes, however, these 'courses' amounted to little more than a sequence of discrete events or activities, rather than a continuum of information and guidance. It is here that one weakness was clearly revealed - the inadequacy of careers education provision for the more able pupils. HMI cites the example of one school where a well-intentioned fourth year scheme had run into predictable difficulties: 'It occupies a whole afternoon every week for the year. It is available to all pupils but is time-tabled for none. In other words, pupils attend by the grace and favour of the subject teachers, and as might be expected the attendance of the 'examinees' is very much lower than that of the
[page 58]
'non-examinees'. This inherent variability in numbers and nature of the attenders creates real difficulty for the careers teachers in planning a coherent programme of guidance'.
155. In all schools in the survey, the careers programme followed by most pupils includes:
| % |
| a. The whole range of occupations open to them. | 62 |
| b. Personal and educational qualifications required for specific occupations. | 78 |
| c. School courses related to occupations. | 55 |
| d. Opportunities in industrial training. | 61 |
| e. Opportunities in further education. | 75 |
| f. Local industry. | 70 |
| g. Aspects of working life. | 66 |
156. The degree of attention paid to b. in most schools probably reflects the pattern of the programme followed by careers officers who base their approach on the promotion of self-awareness and understanding. Comparatively little attention is paid to a study of the occupational relevance of school courses, and this may be due to the reluctance of schools to appear to interpret their curriculum in any narrowly vocational sense. The inclusion of a consideration of aspects of working life in the careers programme is a controversial question, the school's answer to which may reflect its interpretation of its social responsibilities in relations between the school and the adult world, extending into the field of values and attitudes. These aspects are more commonly dealt with within the wider context of moral education than in careers lessons as such, and there appears to be room for the exploration of the possibilities of inter-related courses in this respect.
157. Special arrangements to cater for the needs of slow learning and/or handicapped pupils are made in 55% of the modern and comprehensive schools which have such pupils. Detailed analysis of the available provision could not be made during the survey, but it would seem that the limited resources of both the schools and the Careers Service in this respect do not allow adequate attention to be paid to this problem in many areas.
158. Thirty-seven per cent of all schools in the survey present pupils with important subject choices in the third year, and in 62%
[page 59]
of schools, subject options, some of which may involve the same pupils, are presented in the fourth year. While choice is inevitable, these are the periods when curriculum planners should safeguard against premature specialisation, and the school should ensure that the pupils do not later find that the courses on which they have embarked preclude entry to their chosen career. The importance of discussion with both pupils and parents at this stage is appreciated by the majority of schools, (72%), although the extent and nature of parental involvement obviously varies considerably from school to school. This figure drops to 62% in relation to sixth form pupils and their parents.
159. The statistics imply that for many schools there is a need to make more specific arrangements to involve parents when their children reach critical decision-making stages during their school career. It is true that Careers Conventions, organised either by the school or the Careers Service are held in 76% of all schools, and that these are an effective inducement to parental attendance, but they should be regarded as a supplement to the careers programme rather than a substitute for continuous contact. Other parents' meetings where careers education is discussed are held by 50% of rural schools,60% of urban schools, and 66% of rural/urban schools. Urban modern schools, where such meetings are held in only 21% of schools, show the greatest deficiency in this respect. In general, rural schools, which might have been expected to encounter more difficulties in arranging meetings for parents, do not compare badly with schools in urban or rural/urban areas, while their command of parental support is often stronger. For all schools which hold parents' meetings at which careers education is discussed, 17% claim an attendance of more than three-quarters of the parents, and 39% claim that between half and three-quarters of the parents are present.
160. In Welsh-medium secondary schools, and in areas where Welsh is the home language of the pupils, both careers teachers and careers officers carry on much of their work through the medium of Welsh, in talks, discussions and interviews. In some areas, the local education authority in conjunction with CYEE has prepared Welsh versions of the forms issued to pupils by the Careers Service. Some bodies, such as the Post Office, issue Welsh versions of their careers publicity material. Consideration should be given by those
[page 60]
concerned with careers guidance in the Welsh-speaking areas to the possibility of extending such provision. A Welsh translation of the Careers Survey Questionnaire was prepared, and copies were issued to 43 schools.
[page 61]
PART III: CONCLUSIONS AND RECOMMENDATIONS†
General findings (other than in special schools*)
161. The concept of careers education as that element in the school programme more especially concerned with preparation for living and working in the adult world is not at present generally accepted or put into practice except by a minority of schools. Analysis of statistical data cannot alone provide the basis of this conclusion; it is founded rather on impressions gained from visits to schools supported by the statistical evidence. In the opinion of HM Inspectorate, 15 of the 87 schools visited are realising in some important aspects the aims of careers education stated in this report. In 53 schools, these aims have yet to be realised and, in some cases, recognised.
The curriculum
162. For all boys and girls careers education should be a continuous process and an important element in the curriculum. The word 'career' is used to describe progress through life: how men and women earn their living and spend their time. Personal fulfilment may be achieved in occupations which enable them to earn a living, but for many the working week may in the future be limited to four days at the most. For all whose employment absorbs only a proportion of their energies and interests the pursuit of hobbies, special enthusiasms and social activities may prove a major source of satisfaction in life.
163. Careers education is concerned explicitly with preparation for adult life and with the acquisition of knowledge and development of skills which have relevance for the future. Implicit in the continuous process are: self knowledge; the exploration of the material world and the people who live in it; the training of the intellect; the development of the creative and aesthetic senses; the
†The figures in brackets refer to paragraphs in Parts I and II.
*Recommendations for special schools are contained in paragraph 193.
[page 62]
challenge of moral principle and the response to it; the awareness and understanding of spiritual values. Careers education is not a new concept; it identifies and accentuates certain specific features in the profile of general education familiar to every secondary school teacher.
164. There are many questions which schools have to ask themselves about curricular planning, and these questions may have important implications for careers education. At what stage should a second foreign language be introduced? Should all pupils study a foreign language and, if so, for how long? Should three sciences be introduced and, if so, for which pupils and at what stage? This survey has not been concerned specifically with such questions, but they have as much relevance for careers teachers as they do for heads, heads of departments and all other members of staff who may be involved. They also underline the importance of consultation and communication among members of staff.
(13-27, 149-158)
Records and interviews
165. A pupil's record, available for all concerned to see, can be expected to include not only an assessment of academic, athletic and social progress, but also indications of growing self-awareness, personal aspirations and expressed careers interests. All teachers should be involved in building up this record. They need to be properly briefed about agreed procedures so that the member of staff, perhaps a house mistress or a year master, can maintain an up-to-date record of the pupil. For a vocational guidance interview this information is vital.
166. It is important that decisions reached at interviews are themselves recorded.
(30-32)
Contact with parents
167. Evidence from visits to schools confirms that parental expectation and parental guidance are important and in many cases decisive factors in young people's choice of occupation. Schools are well advised to include in their careers programme an element designed specifically for the information and guidance of parents, especially when advice at home may be well intended but ill informed.
[page 63]
168. Contact with parents should be close and continuous. It is of particular importance at the stages in the secondary school course when decisions are made about changes in curriculum and their career implications.
(26, 28, 29, 159)
Staffing and organisation
Time
169. Effective careers education is often handicapped by serious lack of time for both teachers and pupils. Of the 87 schools visited, 50 are thus affected; in 23 schools, time spent represents a bare adequacy but no more; 14 schools go some way towards making adequate time available. Proper deployment of staff and time are essential.
170. At about the age of 13, a process of discussion and exploration should begin. This is the time when the eyes of the young need to be opened to wider possibilities. For the majority, this divergent process must have given way, before the age of 16, to a convergent process through which young people are enabled to define, at least in general terms, the type of occupation in which they may find their first employment. These two processes demand time. Time is needed for the gathering of information. Time is needed also for individual and group discussion designed to help young people to come to terms with themselves and with the world of work and of leisure which they are so soon to enter. For the increasing numbers who continue their formal education up to and beyond the age of 18, the divergent stage can sometimes be usefully and appropriately prolonged, but usually the convergent process must be well on the way by the age of 17 at the latest. For all members of sixth forms, time must be found for careers education.
171. Time given to both staff and pupils for careers education, though it hinges on manpower resources and on pressures on timetable, depends fundamentally on the attitude of the headmaster or headmistress. The matter is one of priorities. In the establishment and use of resources, large schools have advantages over small schools, but a small school, if it regards careers education as important, is not prevented by mere lack of size from doing justice to it. Schools vary widely in their organisational structure and in their circumstances and it would be difficult to agree on a model
[page 64]
or formula for calculating the total amount of time that is appropriate. As an example, members of one careers teachers' association recommend a minimum staff time allowance of four periods per week per form entry in an 11-16 school. This allocation is intended to be shared among the members of staff involved in careers work and covers time spent in careers teaching as well as other duties. It is emphasised that the figure refers to staff time and that it is regarded as minimal. It must also be stressed that the formula for time allocation will vary according to the age range with which the school is concerned.
(23, 25, 34, 39, 126)
Teamwork
172. Whatever the size of school, it is unreasonable to expect, either now or in the future, that planning can be effective unless undertaken as a co-operative effort. There are various means of achieving this. It is clear that some schools and sixth-form colleges, where the curriculum offers a wide variety of choice, have found particular value in their curriculum committee, sometimes called the 'academic board'.
173. The good careers teacher has a clear grasp of the details of the curriculum and can also speak with authority on the educational and vocational implications of subject choices. His or her participation in planning helps to ensure that careers education is built into the curricular pattern. Indeed, the careers staff are as closely involved in the strategy of the curriculum as they are in the school's system of pastoral care.
174. Careers work is effectively undertaken by a team of teachers at least one of whom carries careers education as a major responsibility. This principle does not imply that the careers co-ordinator is occupied full-time with careers work to the exclusion of everything else, but that he or she can be regarded as performing a function which carries an entitlement to a reduced teaching programme in other areas of the curriculum.
175. There are encouraging signs of the development of teamwork in careers education. Of the 87 schools visited in England and Wales, 56 involve members of staff other than the designated careers teacher in educational and vocational guidance; and of these 56, nine have strong and effective teams and 15 others are
[page 65]
well on the way to realising this objective. Meanwhile, the careers teacher, who for so long has tended to work in isolation and whose task has so often been considered peripheral to the main business of the school, is beginning to be recognised as an important member of the staff community.
(13, 15-22, 26, 27, 35, 40, 41, 153)
The induction year
176. The induction period for new teachers should include an introduction to pastoral care and to the role of teachers as points of first reference for pupils; this would cover personal, educational and careers guidance and their inter-relationship.
(23, 25)
In-service training
177. There is pressing need for an expanded and well co-ordinated programme of in-service training. Two recommendations are offered:
(i) In the longer term it is reasonable to expect that the provision of one-year diploma courses at present designed primarily for counsellors will be expanded, and that some of them will accommodate teachers wishing to be concerned with educational and vocational guidance as well as those whose aptitude and temperament incline them towards personal and social aspects of the work.
(ii) In the short term, every designated careers teacher, before taking up duties as such, should attend a preparatory course of at least one week's duration. This should be followed up, within the next two years, by further in-service training preferably over an extended period. All teachers already in post but not having attended any such course should be given the facility to do so at the earliest opportunity.
(42-44, 127, 129)
Material resources
178. Every school, whatever its size, needs to allocate one room as an office for the careers teacher and one space for display of information and for group discussion. This represents a basic requirement for a school containing up to 500 pupils; for larger schools, more than one space for browsing and for discussion is needed.*
*See, for example, the provision described on pages 36-37 of DES Building Bulletin No. 48. Maiden Erlegh Secondary School, HMSO, 1973 (80p).
[page 66]
179. Certain other resources are considered to be necessary: sufficient storage space, filing equipment, facilities for cataloguing publications, a telephone line and a proper allocation of secretarial assistance.
180. The need both for proper storage space and for filing equipment is self evident. It is a matter of some concern, therefore, that no less than 36% of schools provide no storage space, and 26% no filing equipment, for careers work.
181. It is reasonable to expect that large purpose-built schools with extensive premises, or schools on split sites, will be equipped with enough internal telephones to ensure proper communication between members of staff, although smaller schools on compact sites may need less elaborate arrangements. But whatever the size of school, it should be as convenient for the careers teacher as for the head or deputy head to contact an outside source. The provision of at least an extension, so that an outside call can be made or received through a switchboard, is considered essential.
(45-49, 51-56, 131, Table 13)
Expenditure on materials and visits for careers education
182. It is not practicable, even if it were desirable, to suggest a minimum amount to be reserved for this purpose. It is only appropriate to express the opinion, in general terms, that resources should be such as to enable pupils of all abilities and aptitudes to explore the world of work inside and outside the school.
(50, Table 12, 130)
Relations with the Careers Service
183. Careers officers are now widely accepted and welcomed by schools. The relationship between schools and the Careers Service requires sensitivity on both sides if it is to be effective. It involves linking two distinct though inter-dependent functions. Only the combined expertise of both forces can achieve the joint objective - that of helping young people during the often difficult period between exploration of the working world and the choice of occupation within it.
184. Co-operation between careers officers and teachers has hitherto benefited more often the average or below average pupils.
[page 67]
There are signs, however, that schools are beginning to realise that the able pupil is equally entitled to such benefits.
(59-69, 135-140)
Relations with further and higher education
185. The need to strengthen relationships between schools and institutions of further and higher education is apparent from statistical evidence and from impressions drawn from visits to schools.
186. There is no merit in establishing linked courses with colleges of further education merely to follow a fashionable trend. Their validity and usefulness depend on the needs of pupils, on the resources available at the school and on the willingness and capacity of the college of further education to participate in the joint venture. Essential to success is a spirit of mutual understanding and careful planning.
187. For those members of the school community who set their sights on higher education, for instance in a polytechnic or a university, information is available in printed form: on entry requirements, about details of courses, about which institution offers which specialism and about living conditions. Schools with long academic traditions and records of successful entry to universities have not always seen their task as entailing more than that of helping pupils on to the next stage of their education. But however able and highly motivated boys and girls may be, they need both time and opportunity to think about and discuss the various implications of courses which they may choose in the sixth form, and the courses to which these may lead at the tertiary stage. Moreover, the rapidly expanding sixth form contains an increasing number of young people for whom the experience is totally unfamiliar. They have never been inside a university or a polytechnic, nor have their parents, relatives, or indeed anyone in their immediate circle of friends and acquaintances.
188. All members of sixth forms need help in choosing which courses to follow and in discovering the target most likely to lie within their reach. The combined efforts of members of the careers staff and of careers officers can help the would-be students to make up their minds whether some form of higher education is likely to
[page 68]
be appropriate for them. For those who are reasonably sure that this should be their objective, further help can be given in deciding the appropriate course and institution. It would be unwise for a decision to be reached without serious consideration of the student's future career.
(27, 70-74, 77-79, 142-145)
Relations with employers
189. Links between schools and employers need to be more deliberately fostered. In particular, the release of teachers to industry and personal contact between members of school staffs and managers of commercial and industrial concerns are most desirable. Teachers recruited from industry may well prove, with satisfactory teaching experience, to be valuable as members of careers teams.
190. Meanwhile, the opportunity of observing the various kinds of occupations being carried out, and of meeting with and talking to possible employers and fellow workers may help to crystallise young people's ideas about their own futures. It may help them also to discover the area in which their choice of occupation may lie. For a great many school leavers, such choice may be severely limited, and for some it may be a question of accepting employment because it is available. In such circumstances, something may be gained by having a preliminary notion of what it feels like to be a wage earner whatever the occupation may be.
191. There is a good deal of difference between giving boys and girls the opportunity to make a variety of visits of an exploratory nature, and giving them what has become known as 'work experience' - a device for informing and motivating young people by involving them in an activity, outside the school, which may perhaps have more meaning for them than what they do in the classrooms. Much of what is described as 'work experience' can more properly be called 'work observation'; it is widely considered that work observation offers the kind of opportunity from which young people are equally if not more likely to profit.
192. While organised activities outside the school may reinforce work done in the classroom, they are no valid substitute for what a school should be attempting to do for its pupils within the school community.
(81-90, 146-148)
[page 69]
Special schools
193. Because of the complex nature of their commitment, special schools have been dealt with in a separate chapter, and the recommendations offered are as follows :
(i) That every effort be made to ensure that a member of staff is qualified by appropriate training and experience to fulfil the role of a careers teacher working in active partnership with the careers officer;
(ii) That the involvement of careers officers with special schools should at the very least be as close and as continuous as in any other type of school;
(iii) That steps be taken to ensure that information available to handicapped children about the world of work, reaches them in form which they can readily understand;
(iv) That links with all outside support services should be further fostered and strengthened;
(v) That every encouragement be given to parents to be actively associated with the careers education of their children.
(94, 95, 98-106, 116-120)
Guidelines
194. A school providing good careers education may be expected to display the following features:
(i) a policy of careers education for all pupils;
(ii) a curriculum that 'keeps doors open';
(iii) a pastoral system of which careers education forms an integral part;
(iv) careers work co-ordinated by a nominated teacher with the necessary training, experience and status;
(v) active involvement of other members of staff in careers work, and effective communication between all concerned with the curriculum and with pastoral care ;
(vi) time made available both for teachers and pupils;
(vii) an effective working relationship with the careers office, with higher and further education, and with the world of employment;
[page 70]
(viii) adequate collection and storage of information about all pupils;
(ix) effective discussion between the pupil and all concerned with guidance - parents, teachers and careers officers;
(x) adequate accommodation and resources, well used.
195. The outside world judges a school on its product - the young worker, the student or the apprentice. For teachers also, the product matters, but so too does the process, and it is with some aspects of the process that the preceding pages have been concerned. The next decade will, it is believed, see a growth of careers education. Agencies outside the school will contribute to this development; but the determining factor will be the attitude of teachers and administrators.
[page 71]
[page 72]
[page 73]
[page 74]
[page 75]
[page 76]
[page 77]
[page 78]
[page 79]
[page 80]
[page 81]
[page 82]
[page 83]
[page 84]
Appendix II
The Sample
The sample schools were chosen in the summer of 1971 so that the selected schools could receive the questionnaires in the autumn term. The latest complete list of schools refers to January 1970, and this list was used as the sampling frame. The list was sorted into:
a. Inspectorate divisions (to ensure adequate coverage of all areas of the country).
b. Type of school (to ensure inclusion of all types in roughly the required proportions).
c. Sex of school.
Middle schools and junior comprehensive schools for pupils aged 11-13 were excluded.
A sample was then picked from the sorted list by taking every tenth secondary modern or grammar school and every third school for all other types of secondary school and for special schools. Twice these proportions of schools were picked for Welsh schools. The higher sampling fractions for technical, comprehensive and 'other' schools were to ensure that sufficient numbers of the different types of these schools were included in the sample. Similarly, a higher sampling fraction was taken for Welsh schools so that reasonable estimates for Wales could be produced.
Lists of the sample schools were then sent to the relevant divisional offices of HM Inspectorate and to the Welsh office. The Inspectors were able to identify schools which had closed or had been significantly reorganised since January 1970; different schools in the same area and in the same type and size classification were then substituted for these. This meant that the final sample chosen had more than one in ten secondary modern and grammar schools but less than one in three of all other types of school. All but 52 schools returned their questionnaires, but a further 17 returns were unusable, so that the final proportion of schools included was just over 94% of
[page 85]
the initial sample. The actual number of schools of each type for which results were processed is given in Table 1.
The Tables
The tables given in the report show estimates for the whole country in respect of maintained secondary schools other than special schools. They have been calculated by applying weighting factors to the sample results. For each size and type of school classification, the proportion of all schools which was included in the sample was calculated. The reciprocals of these proportions were then used as weighting factors to provide estimates for all schools of a given type. All the figures in the tables except the total number of schools of each type are therefore subject to sampling errors.
Standard errors can be calculated for random samples of the same size and of the same sampling fraction as the samples obtained in this survey. These errors will vary for the different types and sizes of school. Where the estimate for a given characteristic is 50%, the maximum standard error for a given type of school will be about 5%, but for all schools it will be under 2%. Similarly, for estimates of 20% or 80% the maximum standard error will be about 4% and the minimum just over 1%. For estimates of 10% or 90%, the errors will range from 3% to under 1%, and for estimates of 5% or 95%, they will range from just over 2% to about 0.7 %. There is a chance of about 1 in 20 that sampling errors may occur which are twice the size of a standard error. This means that, for an estimate of 20% of all schools, the true value of the estimate is likely to fall in the range 18% to 22%.
[page 86]
[click on the image for a larger version]
[page 87]
[click on the image for a larger version]

